Lebach:
STEINBACH : Ebenertige Gewerbefläche ( 85m² ) mit 2 Stellplätzen warten auf NEUE Nutzung !
Objekt-Nr.: 5594

Front ( EG links )

Front ( EG links )

Gemeinschaftsraum

Gemeinschaftsraum

Gemeinschaftsraum

Küche

Küche

Flur mit 2 WC

WC Nr. 1

WC Nr. 2

Abstellraum

Flur über Haupteingang

Fahrstuhl

Gemeinschafttswaschküche

Büro : Tholeyer Str. 2, Lebach















Preis:
130.000 €
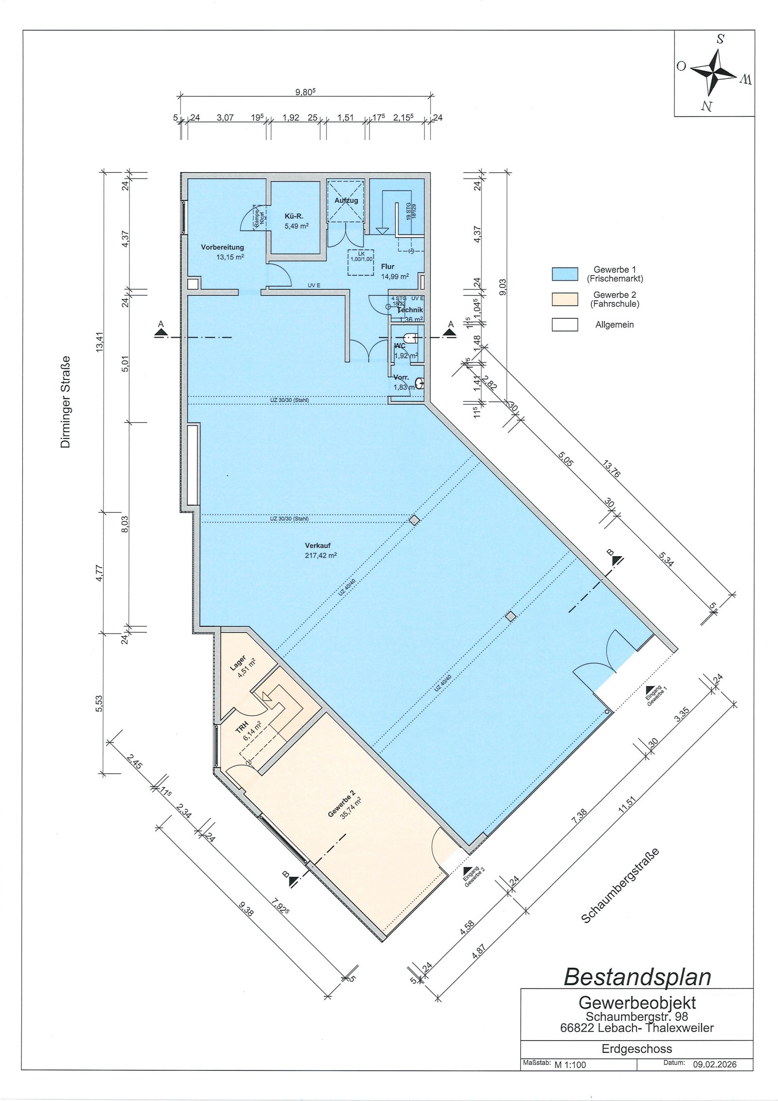
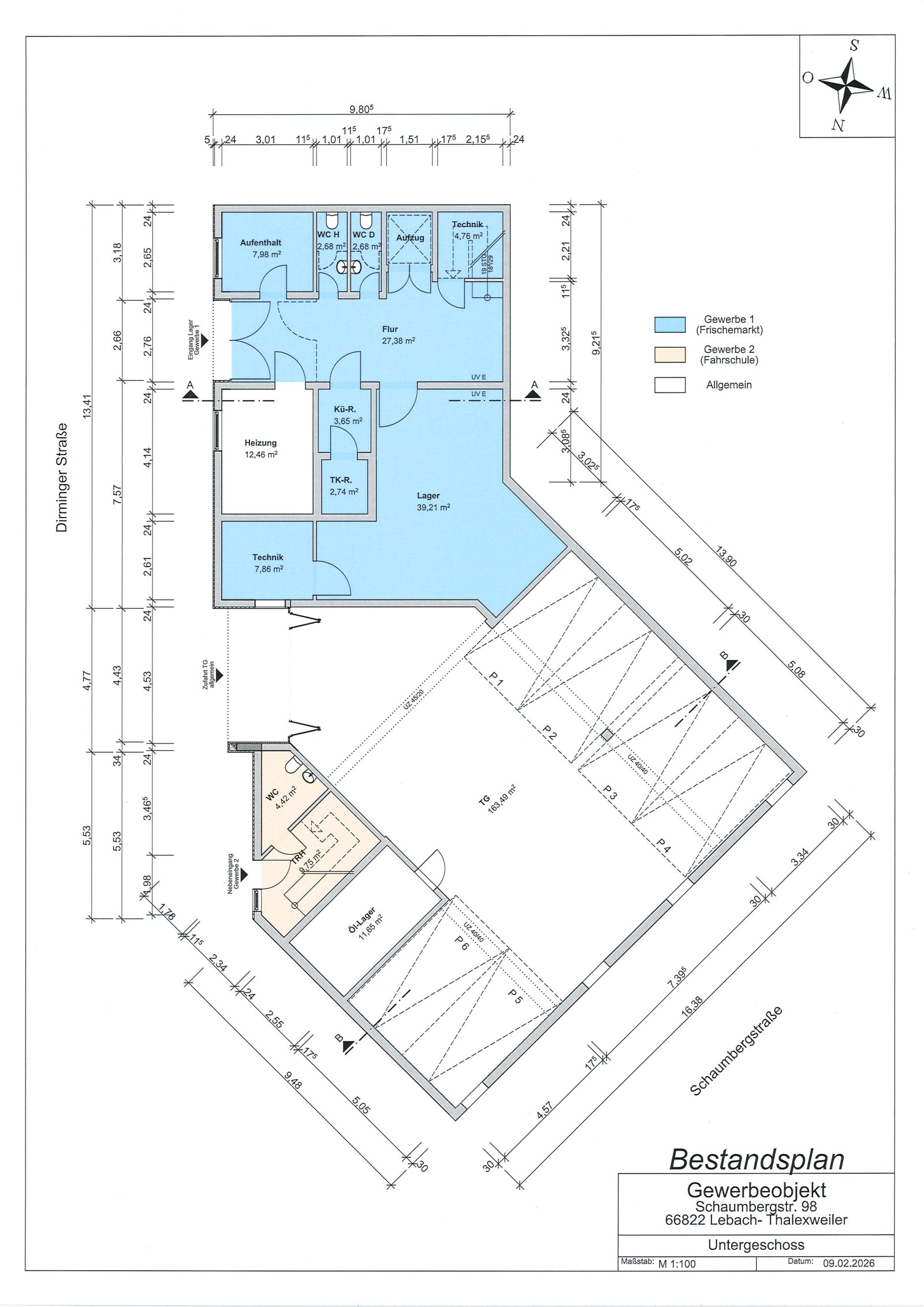
Gesamtfläche ca.:
85,03 m²
Büro-/Praxisfläche ca.:
85,03 m²
Entdecken Sie diese attraktive Gewerbefläche in Lebach / Steinbach mit 2 Stellplätzen, die mit 85,03 m² großzügigen Raum für kreative Ideen und effizientes Arbeiten bietet.
Die ebenerdige Lage ermöglicht einen einfachen Zugang, während ein praktischer Abstellraum zusätzlichen Stauraum für Ihre Bedürfnisse bereitstellt.
Die gepflegte Immobilie ist nicht nur funktional, sondern auch einladend und bietet die besten Voraussetzungen für eine neue Nutzung.
Die Ausstattung ist durchweg gut und sorgt dafür, dass Sie sich sofort wohlfühlen können.
Die Fläche ist mit Fliesen ausgestattet, die nicht nur optisch ansprechend sind, sondern auch pflegeleicht und langlebig.
Die Gewerbefläche ist sofort verfügbar und eignet sich ideal für eine Vielzahl von Nutzungsmöglichkeiten, sei es als Büro oder Praxis.
Die Nutzung sollte vorher mit den zuständigen Behörden abgeklärt werden.
Der gepflegte Zustand der Immobilie garantiert eine zeitnahe Inbetriebnahme ohne größere Renovierungsarbeiten.
Nebenkosten: 360,44 €
Provisionspflichtig: ja
Provision: 3,57 % ( incl. 19 % MwSt )
Qualität der Ausstattung: normal
Baujahr-Gebäude: 2011
Anzahl der Parkflächen: 2 x Außenstellplatz
Keller: Abstellraum
Bodenbelag: Fliesen
Zustand: gepflegt
Endenergieverbrauch Wärme: 43 kWh/(m²*a)
Fahrzeit zur nächsten BAB: 5 Minute(n)
Heizung: Zentralheizung
Befeuerungsart: Gas
Energieausweistyp: Verbrauchsausweis
Die von uns gemachten Informationen beruhen auf Angaben des Verkäufers bzw. der Verkäuferin. Für die Richtigkeit und Vollständigkeit der Angaben kann keine Gewähr bzw. Haftung übernommen werden. Ein Zwischenverkauf und Irrtümer sind vorbehalten.
Das könnte Ihnen auch gefallen
AW-Immobilien e.K. Inhaber Andreas Wilhelm
Herr Andreas Wilhelm
Tholeyer Str.2
66822 Lebach
Telefon: +49 6881 537527
66822 Lebach
Saarlouis
Saarland
























